Select –5–12
SO279624
SO309624
SO339624
SO399624
SO279324
SO309324
SO339324
SO399324
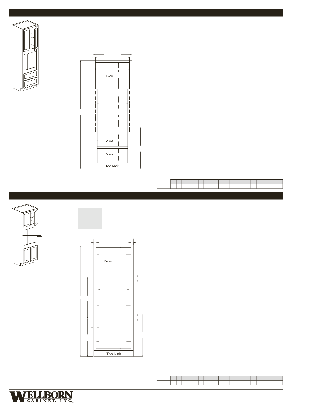
• Toe kick shipped attached
2 Drawers,
2 Doors w/o center mullion,
1 Full depth adj. shelf,
1 Shelf brace for oven
93” & 96” High Single Oven Cabinet
SINGLE OVEN CABINETS (continued)
24
27, 30, 33, 39
3
1
/
4
93,
96
31
1
/
2
Max.
28
1
/
2
Min.
93,
96
27, 30, 33, 39
1
3
/
4
1
3
/
4
23
1
/
2
, 26
1
/
2
, 29
1
/
2
, 35
1
/
2
20
1
/
2
, 23
1
/
2
, 26
1
/
2
, 32
1
/
2
32
1
/
2
29
1
/
2
,
24
Min.
5
1
/
2
5
1
/
2
9
3
/
8
3
1
/
4
9
3
/
8
32
1
/
4
Max.
23
1
/
2
, 26
1
/
2
, 29
1
/
2
, 35
1
/
2
SINGLE OVEN CABINETS WITH DOORS
• Toe kick shipped attached
4 Doors w/o center mullion,
1 Full depth adj. shelf,
1 Shelf brace for oven
SOD278424
SOD308424
SOD338424
SOD398424
84” High Single Oven Cabinets with Doors
31
1
/
2
Max.
28
1
/
2
Min.
84
27, 30, 33, 39
1
3
/
4
1
3
/
4
1
3
/
4
20
1
/
2
20
1
/
2
24
Min.
5
1
/
2
5
1
/
2
32
1
/
4
Max.
20
1
/
2
, 23
1
/
2
, 26
1
/
2
, 32
1
/
2
23
1
/
2
, 26
1
/
2
, 29
1
/
2
, 35
1
/
2
23
1
/
2
, 26
1
/
2
, 29
1
/
2
, 35
1
/
2
23
1
/
2
, 26
1
/
2
, 29
1
/
2
, 35
1
/
2
24
27, 30, 33, 39
84
3
1
/
4
Semi-Custom
APC BO ES FCE FDBS FH FI FIMD FO ID MFE P PCE PWD RD RTK TKA VTK WCM WDSC
SEL
● ● ● ●
● ● ●
● ● ●
●
s
●
s
●
Semi-Custom
APC BO ES FCE FDBS FH FI FIMD FO ID MFE P PCE PWD RD RTK TKA VTK WCM WDSC
SEL
● ● ● ●
● ● ●
● ●
●
s
●
s




